REFORMA INTEGRAL PINTORES
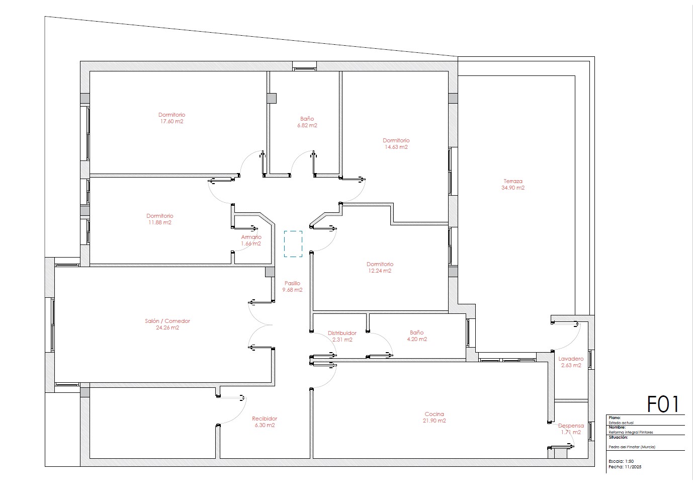
En este proyecto, los clientes buscaban renovar por completo la vivienda adaptándola a sus necesidades actuales. Buscaban un espacio cómodo para dos personas, aprovechando al máximo la luz natural y la zona exterior de la vivienda.


La opción elegida se distribuía en dos zonas claramente diferenciadas: zona día y zona noche. En la zona día tenemos un salón comedor amplio con acceso directo a la terraza, junto a él, una cocina semiabierta. En la zona noche, contamos con un dormitorio principal con baño y vestidor, dos dormitorios de invitados y otro baño.












